0
Réf : 729

TERRAIN CONSTRUCTIBLE 1317m2 -BIOT - SECTEUR BOIS FLEURI

Biot (06410)
495 000 €

A propos de ce bien

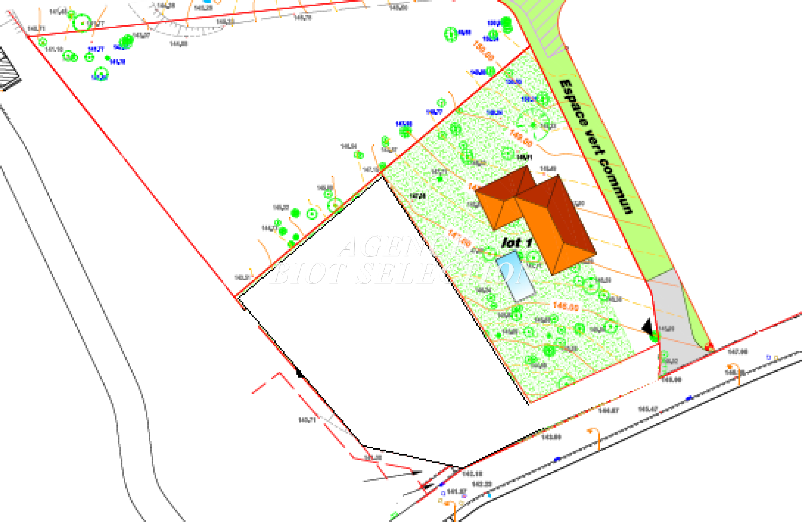
BIOT, quartier recherché de "Bois Fleuri", ou vous aurez une opportunité unique de construire la maison de vos rêves, au cœur d'un environnement paisible et verdoyant.

Ce terrain d'une superficie de 1317m2 vous permettra de créer votre projet de vie idéal sans limite dans votre imagination avec une emprise au sol de 369.8m2 et une surface planchée bâtis de 350m2 et environ 1000m2 restant d'espace vert et arboré, au calme tout en étant dans un quartier résidentiel !

Vous apprécierez sa situation géographique (écoles, commerces, et transports en commun accessibles à pied - proximité centre d'affaires de Sofia) 

Libre constructeur.

DPE non applicable.

Les informations sur les risques auxquels ce bien est exposé sont disponibles sur le site Géorisques : www.georisques.gouv.fr

Bien situé dans une zone soumise à l'obligation de débroussaillement.

A DECOUVRIR SANS TARDER

découvrir le bien

Descriptif du bien

TRAD_PAMPERO_Caracteristique Valeurs
Code postal 06410
surface terrain 1 317 m²
Vue nature
Terrain constructible OUI
TRAD_PAMPERO_Caracteristique Valeurs
Exposition Sud
Quartier LA VALLEE VERTE
Terrain Viabilisé OUI
TRAD_PAMPERO_Caracteristique Valeurs
Prix de vente honoraires TTC inclus 495 000 €
Ce bien vous intéresse ?
Fieldset par défaut
Fieldset par défaut
Validation

* Champs obligatoires

Contacter l'agence
Validation
Les informations recueillies sur ce formulaire sont enregistrées dans un fichier informatisé par La Boite Immo agissant comme Sous-traitant du traitement pour la gestion de la clientèle/prospects de l'Agence / du Réseau qui reste Responsable du Traitement de vos Données personnelles. La base légale du traitement repose sur l'intérêt légitime de l'Agence / du Réseau. Elles sont conservées jusqu'à demande de suppression et sont destinées à l'Agence / au Réseau. Conformément à la loi « informatique et libertés », vous disposez des droits d’accès, de rectification, d’effacement, d’opposition, de limitation et de portabilité de vos données. Vous pouvez retirer votre consentement à tout moment en contactant directement l’Agence / Le Réseau. Consultez le site https://cnil.fr/fr pour plus d’informations sur vos droits. Si vous estimez, après avoir contacté l'Agence / le Réseau, que vos droits « Informatique et Libertés » ne sont pas respectés, vous pouvez adresser une réclamation à la CNIL. Nous vous informons de l’existence de la liste d'opposition au démarchage téléphonique « Bloctel », sur laquelle vous pouvez vous inscrire ici : https://www.bloctel.gouv.fr Dans le cadre de la protection des Données personnelles, nous vous invitons à ne pas inscrire de Données sensibles dans le champ de saisie libre.
Ce site est protégé par reCAPTCHA, les Politiques de Confidentialité et les Conditions d'Utilisation de Google s'appliquent.
Ces biens peuvent vous intéresser